Craighead Gardens, Lanark ML11
Property overview
Detached
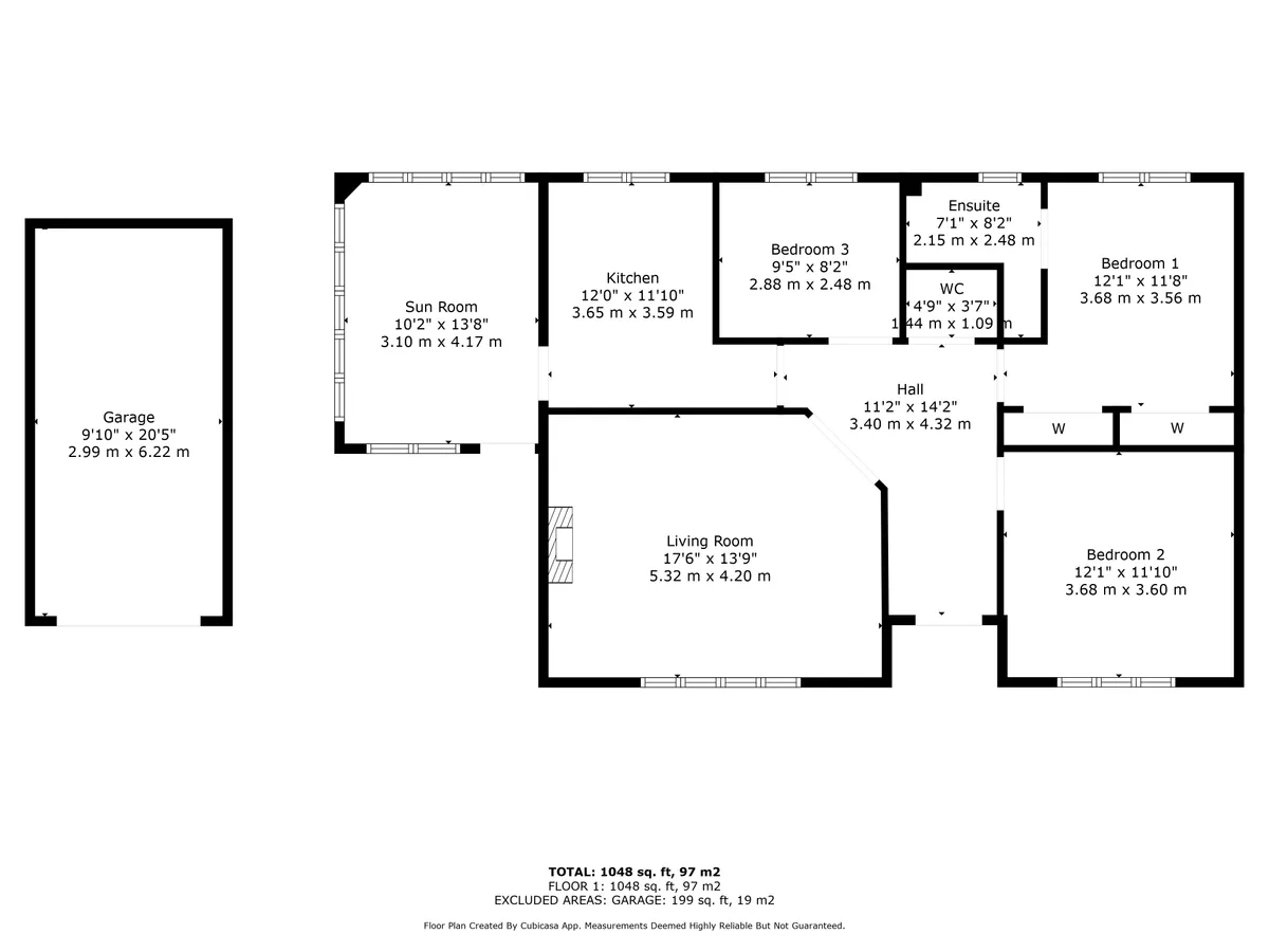
Floor plan
Property information
A lovely detached three bed bungalow with conservatory situated in quiet cul de sac in Lesmahagow.
The property has recently been decorated throughout, the property comprises of good sized hallway, large lounge, three bedrooms one with ensuite, kitchen leading into conservatory.
Features include double glazing, gas central heating and garage with split level garden to the rear with the front garden mainly lawn with stoned area and good sized driveway to garage.
Craighead Gardens is minutes from both North & South bound routes of the M74 motorway, bus route X74 to Glasgow Buchanan Street stopping only at Hamilton bus station before heading off into Glasgow. A lovely village lifestyle with plenty of walks, Lesmahagow benefits from a Tesco supermarket, coffee shops, hairdressers, chemists and other local shops.
Viewing for this property is highly recommended!
